情報更新日:2025年08月26日/広告有効期限:なし
表示閲覧回数(過去30日間):67
お急ぎの方はお電話からお気軽にどうぞ!
052-825-3395 営業時間 / 9:30〜18:00 定休日 / 日曜日
>物件詳細情報
基本情報 | |
---|---|
物件番号 | 10007806405 |
店舗形態 | 店舗, 事務所 |
オススメ業種 | 塾・学校・教育関係, 物販関係, 事務所 |
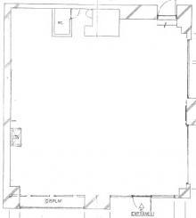
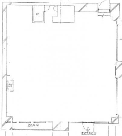
物件名 | 八事半僧坊マンション |
物件の状態 | 空き |
引越し時期 | 2025(令和7)年05月下旬 |
契約形態と期間 |
普通契約期間:2年間 |
所在地・交通 | |
---|---|
所在地 | 愛知県名古屋市昭和区広路町-石坂48-5 |
交 通1 | 鶴舞線八事駅 徒歩5分 |
交 通2 | - |
賃料 | |
---|---|
賃 料 | 220,000円(税込) |
共益費・管理費 | 21,388円(税込) |
保証金 | 6ヶ月 |
保証金償却 | 50% |
その他 | |
---|---|
備考 |
建物 | |
---|---|
建物構造 | 鉄骨鉄筋コンクリート造 |
建物階建て |
地上9階 |
施工年月 | 1983(昭和58)年 03月 |
募集物件の階数 | 地上 1階 |
契約面積 | 68.59m2(20.75坪) |
用途地域 | 商業地域 |
設備 | |
---|---|
水道 | 公営 |
下水道 | 公共下水 |
駐車場 | |
---|---|
状 況 | 近隣 |
取引情報 | |
---|---|
取引態様 | 媒介 |
客付 | 可 |
この物件をチェックした人はこんな物件も見ています
- ロードサイド沿いの店舗で集客見込めます。
愛知県名古屋市中区栄4-6-3
90.12m2(27.26坪)
299,860円(税込)
- 店舗利用可能(登記・看板もOK) 事務所・店舗はテナント名古屋へ
愛知県名古屋市中村区東宿町2-125
96m2(29.04坪)
209,000円(税込)
- 栄生駅徒歩5分の事務所。
愛知県名古屋市西区栄生2-13-23
72.72m2(22.00坪)
132,000円(税込)
- 国道19号線沿いで目立ちます!
愛知県名古屋市東区赤塚町-18
28.97m2(8.76坪)
93,500円(税込)
- 業種については応相談となっております。大通り沿いで視認性良好、保証会社加入必須、事務所・店舗はテナント名古屋へ
愛知県名古屋市中川区運河通1-104
32.85m2(9.94坪)
115,500円(税込)
今日チェックした物件
お急ぎの方はお電話からお気軽にどうぞ!
052-825-3395 営業時間 / 9:30〜18:00 定休日 / 日曜日