情報更新日:2025年12月25日/広告有効期限:なし
表示閲覧回数(過去30日間):61
お急ぎの方はお電話からお気軽にどうぞ!
052-825-3395 営業時間 / 9:30〜18:00 定休日 / 日曜日
>物件詳細情報
| 基本情報 | |
|---|---|
| 物件番号 | 10007808379 |
| 店舗形態 | 事務所 |
| オススメ業種 | 事務所 |
| 物件名 | 第一山清ビル |
| 物件の状態 | 空き |
| 引越し時期 | 即 |
| 契約形態と期間 |
普通契約期間:3年間 |
| 所在地・交通 | |
|---|---|
| 所在地 | 愛知県名古屋市中川区八田町-2301 |
| 交 通1 | 東山線八田駅(名古屋市営)駅 徒歩1分 |
| 交 通2 | 関西本線八田駅(JR)駅 徒歩1分 |
| 賃料 | |
|---|---|
| 賃 料 | 176,000円(税込) |
| 共益費・管理費 | 11,000円(税込) |
| 保証金 | 800,000円(税込) |
| 保証金償却 | 50% |
| 礼 金 | 1ヶ月 |
| その他 | |
|---|---|
| 備考 | 八田駅徒歩1分の事務所。保証会社・火災保険必須。事務所・店舗はテナント名古屋へ。 |
| 建物 | |
|---|---|
| 建物構造 | 鉄筋コンクリート造 |
| 建物階建て |
地上4階 |
| 施工年月 | 1988(昭和63)年 03月 |
| 募集物件の階数 | 地上 2階 |
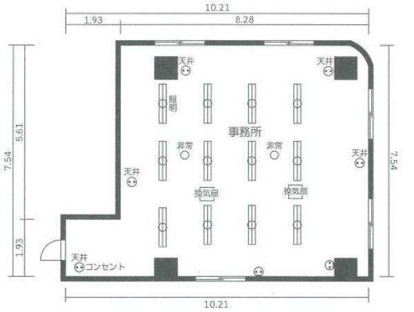
| 契約面積 | 66m2(19.97坪) |
| 用途地域 | 商業地域 |
| 設備 | |
|---|---|
| 水道 | 公営 |
| 下水道 | 公共下水 |
| エアコン | 有り/個別 |
| トイレ | 有/共用 |
| 給湯室 | 有/共用 |
| 床仕様 | Pタイル |
| 利用時間 | 24時間 |
| 照明設備 | 有 |
| 駐車場 | |
|---|---|
| 状 況 | 近隣 |
| 取引情報 | |
|---|---|
| 取引態様 | 媒介 |
| 客付 | 可 |
この物件をチェックした人はこんな物件も見ています
- 名古屋駅太閤通口1分の飲食ビルです。

愛知県名古屋市中村区椿町-15-27
271.23m2(82.05坪)
2,256,100円(税込)
- 店舗利用可能(登記・看板もOK) 事務所・店舗はテナント名古屋へ

愛知県名古屋市中村区東宿町2-125
96m2(29.04坪)
209,000円(税込)
- 事業用定期借地です。

愛知県名古屋市港区惟信町3-43
760.68m2(230.11坪)
379,500円(税込)
- 路面店店舗、駐車場敷地内1台分有り、問合せ先:アパマンショップ小牧店 担当 平松TEL 0568-74-2377 メールアドレス makoto-hiramatsu@ria-group.jp

愛知県名古屋市中村区亀島1-5-22
34m2(10.29坪)
132,000円(税込)
- ロードサイド沿い1階店舗・事務所です。別地で駐車場ございます。カフェはご相談できます。保証会社・火災保険契約必須。

愛知県名古屋市港区津金2-8-25
38.47m2(11.64坪)
110,000円(税込)
今日チェックした物件
お急ぎの方はお電話からお気軽にどうぞ!
052-825-3395 営業時間 / 9:30〜18:00 定休日 / 日曜日


052-825-3395



















052-825-3395