情報更新日:2026年01月24日/広告有効期限:なし
表示閲覧回数(過去30日間):6
お急ぎの方はお電話からお気軽にどうぞ!
052-825-3395 営業時間 / 9:30〜18:00 定休日 / 日曜日
>物件詳細情報
| 基本情報 | |
|---|---|
| 物件番号 | 10007809519 |
| 店舗形態 | 事務所 |
| オススメ業種 | 事務所 |
| 物件名 | VIA141 |
| 物件の状態 | 空き |
| 引越し時期 | 2026(令和8)年04月下旬 |
| 契約形態と期間 |
普通契約期間:2年間 |
| 所在地・交通 | |
|---|---|
| 所在地 | 愛知県名古屋市西区名駅2-23-14 |
| 交 通1 | 東山線名古屋駅 徒歩4分 |
| 交 通2 | - |
| 賃料 | |
|---|---|
| 賃 料 | 141,680円(税込) |
| 共益費・管理費 | 46,754円(税込) |
| 保証金 | 10ヶ月 |
| その他 | |
|---|---|
| 備考 | 追加空調料金:空調使用時間が176時間をオーバーした時にかかります。 使用時間1時間につき248円です。事務所・店舗はテナント名古屋へ。 |
| 建物 | |
|---|---|
| 建物構造 | 鉄筋コンクリート造 |
| 建物階建て |
地上14階 地下1階 |
| 施工年月 | 1991(平成3)年 11月 |
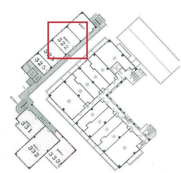
| 募集物件の階数 | 地上 3階 322号室 |
| 契約面積 | 42.57m2(12.88坪) |
| 用途地域 | 商業地域 |
| 設備 | |
|---|---|
| 水道 | 公営 |
| 下水道 | 公共下水 |
| エレベータ | 有 |
| エアコン | 有り/個別 |
| トイレ | 有/共用 |
| 駐車場 | |
|---|---|
| 状 況 | 近隣 |
| 取引情報 | |
|---|---|
| 取引態様 | 媒介 |
| 客付 | 可 |
この物件をチェックした人はこんな物件も見ています
- 店舗利用可能(登記・看板もOK) 事務所・店舗はテナント名古屋へ

愛知県名古屋市中村区東宿町2-125
96m2(29.04坪)
209,000円(税込)
- 名古屋駅太閤通口1分の飲食ビルです。

愛知県名古屋市中村区椿町-15-27
271.23m2(82.05坪)
2,256,100円(税込)
- 名古屋駅近く好立地の事務所です。追加空調料金:空調使用時間が176時間をオーバーした時にかかります。使用時間1時間につき248円です。

愛知県名古屋市西区名駅2-23-14
42.57m2(12.88坪)
141,680円(税込)
- 名古屋駅近く好立地の事務所です。追加空調料金:空調使用時間が176時間をオーバーした時にかかります。使用時間1時間につき403円です。

愛知県名古屋市西区名駅2-23-14
85.79m2(25.95坪)
285,450円(税込)
- ロードサイド沿い2階店舗・事務所です。敷地内に駐車場2台ございます。火災保険・保証会社契約必須。

愛知県名古屋市名東区高針2-2506-2
52.40m2(15.85坪)
132,000円(税込)
今日チェックした物件
お急ぎの方はお電話からお気軽にどうぞ!
052-825-3395 営業時間 / 9:30〜18:00 定休日 / 日曜日


052-825-3395













052-825-3395