情報更新日:2026年02月21日/広告有効期限:なし
表示閲覧回数(過去30日間):12
お急ぎの方はお電話からお気軽にどうぞ!
052-825-3395 営業時間 / 9:30〜18:00 定休日 / 日曜日
>物件詳細情報
| 基本情報 | |
|---|---|
| 物件番号 | 10007810359 |
| 店舗形態 | 事務所, 店舗(飲食店可) |
| オススメ業種 | 医療関係, 塾・学校・教育関係, 美容関係, 事務所 |
| 物件名 | トリニティ瑞穂 |
| 物件の状態 | 空き |
| 引越し時期 | 即 |
| 契約形態と期間 |
普通契約期間:2年間 |
| 所在地・交通 | |
|---|---|
| 所在地 | 愛知県名古屋市瑞穂区八勝通3-16-1 |
| 交 通1 | 名城線瑞穂運動場東駅 徒歩1分 |
| 交 通2 | - |
| 賃料 | |
|---|---|
| 賃 料 | 385,000円(税込) |
| 精算方法 |
敷引 退去時 1,260,000円 |
| 保証金 | 2,100,000円(税込) |
| 保証金償却 | 1,050,000円(税込) |
| その他 | |
|---|---|
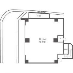
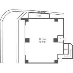
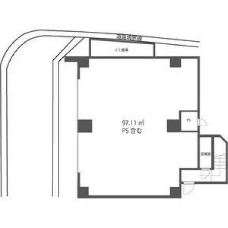
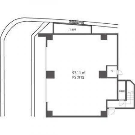
| 備考 | ロードサイド沿い1階スケルトン店舗です。保証会社・火災保険契約必須。業種についてはご相談ください、事務所・店舗はテナント名古屋へ |
| 建物 | |
|---|---|
| 建物構造 | 鉄筋コンクリート造 |
| 建物階建て |
地上8階 |
| 施工年月 | 2025(令和7)年 03月 |
| 募集物件の階数 | 地上 1階 1号室 |
| 契約面積 | 97.11m2(29.38坪) |
| 用途地域 | 近商地域 |
| 設備 | |
|---|---|
| 水道 | 公営 |
| 下水道 | 公共下水 |
| ガス | 都市ガス |
| トイレ | 無 |
| 給湯室 | 無 |
| キッチン | 無 |
| ネット環境 | 無 |
| 駐車場 | |
|---|---|
| 状 況 | 空有 |
| 駐車料金 | 13,200円(税込) |
| 取引情報 | |
|---|---|
| 取引態様 | 媒介 |
| 客付 | 可 |
この物件をチェックした人はこんな物件も見ています
- 店舗利用可能(登記・看板もOK) 事務所・店舗はテナント名古屋へ

愛知県名古屋市中村区東宿町2-125
96m2(29.04坪)
209,000円(税込)
- 名古屋駅太閤通口1分の飲食ビルです。

愛知県名古屋市中村区椿町-15-27
271.23m2(82.05坪)
2,256,100円(税込)
- 駐車場2台付店舗・事務所です。保証会社・火災保険契約必須です。

愛知県名古屋市西区南川町-230
56.43m2(17.07坪)
129,800円(税込)
- スナック居抜店舗です。保証会社・火災保険契約必須です。

愛知県名古屋市中川区高畑3-138
33.30m2(10.07坪)
159,500円(税込)
- 藤ヶ丘駅徒歩2分の店舗・事務所。保証会社・火災保険必須。事務所・店舗探しはテナント名古屋へ。

愛知県名古屋市名東区明が丘-124‐2
43.53m2(13.17坪)
188,188円(税込)
今日チェックした物件
お急ぎの方はお電話からお気軽にどうぞ!
052-825-3395 営業時間 / 9:30〜18:00 定休日 / 日曜日


052-825-3395

















052-825-3395