情報更新日:2025年09月21日/広告有効期限:なし
表示閲覧回数(過去30日間):28
お急ぎの方はお電話からお気軽にどうぞ!
052-825-3395 営業時間 / 9:30〜18:00 定休日 / 日曜日
>物件詳細情報
基本情報 | |
---|---|
物件番号 | 10007810670 |
店舗形態 | 倉庫付事務所, 倉庫 |
オススメ業種 | 倉庫, 事務所 |
物件名 | 石橋白目事務所付倉庫 |
物件の状態 | 入居中 |
引越し時期 | 2025(令和7)年04月上旬 |
契約形態と期間 |
普通契約期間:2年間 |
所在地・交通 | |
---|---|
所在地 | 愛知県北名古屋市石橋-白目57 |
交 通1 | 名鉄犬山線西春駅 徒歩25分 |
交 通2 | - |
賃料 | |
---|---|
賃 料 | 5,500,000円(税込) |
保証金 | 3ヶ月 |
礼 金 | 1ヶ月 |
その他 | |
---|---|
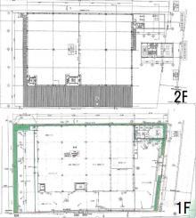
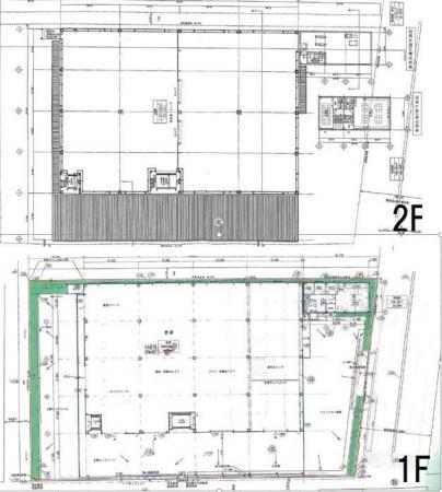
備考 | 事務所付物流倉庫です。倉庫(1階・2階2400㎡)事務所(1階・2階144㎡)5t・8tエレベーター有、8t天井ホイスト有。市街化調整区域です。運送業許可がない場合はご相談出来ます。事務所・店舗はテナント名古屋へ。 |
建物 | |
---|---|
建物構造 | 鉄骨造 |
建物階建て |
地上2階 |
施工年月 | 2015(平成27)年 07月 |
募集物件の階数 | 地上 1~2階 |
契約面積 | 5,088m2(1,539.12坪) |
敷地面積 | 4,947.46m2(1,496.61坪) |
用途地域 | 調整区域 |
駐車場 | |
---|---|
状 況 | 空有無料 |
取引情報 | |
---|---|
取引態様 | 専任 |
客付 | 可 |
この物件をチェックした人はこんな物件も見ています
- ロードサイド沿いの店舗で集客見込めます。
愛知県名古屋市中区栄4-6-3
90.12m2(27.26坪)
299,860円(税込)
- 店舗利用可能(登記・看板もOK) 事務所・店舗はテナント名古屋へ
愛知県名古屋市中村区東宿町2-125
96m2(29.04坪)
209,000円(税込)
- 駐車場2台付2階建て倉庫です。保証会社・火災保険は契約必須です。トイレはございません。
愛知県名古屋市中村区横井1-26
156.60m2(47.37坪)
150,000円(税込)
- 栄生駅徒歩5分の事務所。
愛知県名古屋市西区栄生2-13-23
72.72m2(22.00坪)
132,000円(税込)
- 国道19号線沿いで目立ちます!
愛知県名古屋市東区赤塚町-18
28.97m2(8.76坪)
93,500円(税込)
今日チェックした物件
お急ぎの方はお電話からお気軽にどうぞ!
052-825-3395 営業時間 / 9:30〜18:00 定休日 / 日曜日