情報更新日:2025年09月23日/広告有効期限:なし
表示閲覧回数(過去30日間):30
お急ぎの方はお電話からお気軽にどうぞ!
052-825-3395 営業時間 / 9:30〜18:00 定休日 / 日曜日
>物件詳細情報
| 基本情報 | |
|---|---|
| 物件番号 | 10007810672 |
| 店舗形態 | 店舗(飲食店可), 店舗 |
| オススメ業種 | 重飲食, 軽飲食, 美容関係, 医療関係 |
| 物件名 | HSビル |
| 物件の状態 | 空き |
| 引越し時期 | 即 |
| 契約形態と期間 |
普通契約期間:2年間 |
| 所在地・交通 | |
|---|---|
| 所在地 | 愛知県名古屋市東区東桜2-11-20 |
| 交 通1 | 桜通線高岳駅 徒歩3分 |
| 交 通2 | - |
| 賃料 | |
|---|---|
| 賃 料 | 421,344円(税込) |
| 共益費・管理費 | 52,676円(税込) |
| その他月額費用 1 | 引落手数料 440円(税込) |
| 保証金 | 6ヶ月 |
| 保証金償却 | 55% |
| その他 | |
|---|---|
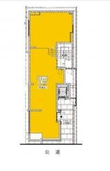
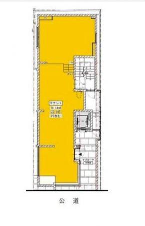
| 備考 | 新築クリニックビルの路面店、好立地、スケルトン渡し、保証金償却解約時3ヶ月 短期(3年以内)解約の場合は全額償却、事務所・店舗はテナント名古屋へ |
| 建物 | |
|---|---|
| 建物構造 | 鉄筋コンクリート造 |
| 建物階建て |
地上4階 |
| 施工年月 | 2024(令和6)年 04月 |
| 募集物件の階数 | 地上 1階 1号室 |
| 契約面積 | 79.14m2(23.94坪) |
| 用途地域 | 商業地域 |
| 設備 | |
|---|---|
| 水道 | 公営 |
| 下水道 | 公共下水 |
| ガス | 都市ガス |
| エレベータ | 有 |
| 駐車場 | |
|---|---|
| 状 況 | 近隣 |
| 取引情報 | |
|---|---|
| 取引態様 | 媒介 |
| 客付 | 不可 |
この物件をチェックした人はこんな物件も見ています
- 店舗利用可能(登記・看板もOK) 事務所・店舗はテナント名古屋へ

愛知県名古屋市中村区東宿町2-125
96m2(29.04坪)
209,000円(税込)
- 名古屋駅太閤通口1分の飲食ビルです。

愛知県名古屋市中村区椿町-15-27
271.23m2(82.05坪)
2,256,100円(税込)
- 駐車場4台付事務所付工場です。ホイストクレーン2基・キュービクルあります。1階391.61㎡・2階19.8㎡保証会社・火災保険契約必須。

愛知県名古屋市南区要町5-133
411.41m2(124.45坪)
950,000円(税込)
- 1棟貸店舗です。店舗に3台・隣に駐車場7台(10万円)ございます。1階87.66㎡・2階104.41㎡・3階73.47㎡保証会社・火災保険契約必須。

愛知県名古屋市瑞穂区神前町2-28-2
265.54m2(80.33坪)
990,000円(税込)
- 岩塚駅徒歩1分の貸事務所

愛知県名古屋市中村区沖田町-390
116.18m2(35.14坪)
220,000円(税込)
今日チェックした物件
お急ぎの方はお電話からお気軽にどうぞ!
052-825-3395 営業時間 / 9:30〜18:00 定休日 / 日曜日


052-825-3395















052-825-3395