情報更新日:2025年09月21日/広告有効期限:なし
表示閲覧回数(過去30日間):8
お急ぎの方はお電話からお気軽にどうぞ!
052-825-3395 営業時間 / 9:30〜18:00 定休日 / 日曜日
>物件詳細情報
| 基本情報 | |
|---|---|
| 物件番号 | 10007810756 |
| 店舗形態 | 事務所 |
| オススメ業種 | 事務所, 塾・学校・教育関係, 医療関係 |
| 物件名 | 原ターミナルビル |
| 物件の状態 | 入居中 |
| 引越し時期 | 即 |
| 契約形態と期間 |
定期契約期間:10年間再契約:不可 |
| 所在地・交通 | |
|---|---|
| 所在地 | 愛知県名古屋市天白区原1-301 |
| 交 通1 | 鶴舞線原駅 徒歩1分 |
| 交 通2 | - |
| 賃料 | |
|---|---|
| 賃 料 | 540,001円(税込) |
| 共益費・管理費 | 154,286円(税込) |
| 保証金 | 10ヶ月 |
| 保証金償却 | 33% |
| その他 | |
|---|---|
| 備考 | 約70坪OAフロア事務所です。償却は3年未満の解約30%、3年以上5年未満の解約10%、5年以上の解約0%です。事務所・店舗はテナント名古屋へ。 |
| 建物 | |
|---|---|
| 建物構造 | 鉄骨鉄筋コンクリート造 |
| 建物階建て |
地上5階 地下1階 |
| 施工年月 | 1997(平成9)年 03月 |
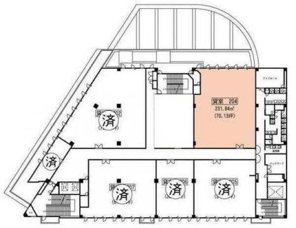
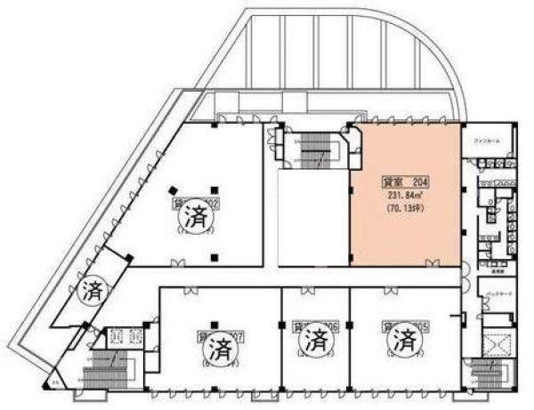
| 募集物件の階数 | 地上 2階 204号室 |
| 契約面積 | 231.84m2(70.13坪) |
| 用途地域 | 近商地域 |
| 設備 | |
|---|---|
| 水道 | 公営 |
| 下水道 | 公共下水 |
| エレベータ | 有 |
| トイレ | 有/共用 |
| 床仕様 | OAフロア |
| 駐車場 | |
|---|---|
| 状 況 | 近隣 |
| 取引情報 | |
|---|---|
| 取引態様 | 媒介 |
| 客付 | 可 |
この物件をチェックした人はこんな物件も見ています
- 店舗利用可能(登記・看板もOK) 事務所・店舗はテナント名古屋へ

愛知県名古屋市中村区東宿町2-125
96m2(29.04坪)
209,000円(税込)
- 名古屋駅太閤通口1分の飲食ビルです。

愛知県名古屋市中村区椿町-15-27
271.23m2(82.05坪)
2,256,100円(税込)
- 名古屋駅徒歩5分の店舗・事務所です。保証会社・火災保険契約必須。事務所・店舗はテナント名古屋へ。

愛知県名古屋市中村区則武1-16-18
65.70m2(19.87坪)
284,570円(税込)
- ロードサイド沿い駐車場付き倉庫兼事務所です。地下1階149.01㎡/1階314.80㎡/2階314.10㎡/3階314.10㎡。電動シャッター付きで搬入搬出がしやすい設計。2階・3階は在庫保管や軽作業スペースに活用可能。荷物用エレベーターで最上階まで搬送できます(メンテは借主負担)保証会社・火災保険契約必須。

愛知県名古屋市港区新船町3-1-7
1,092.01m2(330.33坪)
715,000円(税込)
- 尾張一宮駅徒歩8分のEV付事務所フロアです

愛知県一宮市大江3-12-9
36.12m2(10.93坪)
77,000円(税込)
今日チェックした物件
お急ぎの方はお電話からお気軽にどうぞ!
052-825-3395 営業時間 / 9:30〜18:00 定休日 / 日曜日


052-825-3395














052-825-3395