情報更新日:2026年02月23日/広告有効期限:なし
表示閲覧回数(過去30日間):29
お急ぎの方はお電話からお気軽にどうぞ!
052-825-3395 営業時間 / 9:30〜18:00 定休日 / 日曜日
>物件詳細情報
| 基本情報 | |
|---|---|
| 物件番号 | 10007810987 |
| 店舗形態 | 店舗, 事務所 |
| オススメ業種 | 塾・学校・教育関係, 事務所 |
| 物件名 | 名城ビル |
| 物件の状態 | 空き |
| 引越し時期 | 相談 |
| 契約形態と期間 |
普通契約期間:2年間 |
| 所在地・交通 | |
|---|---|
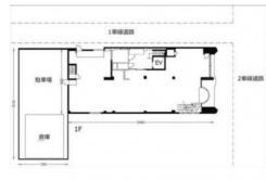
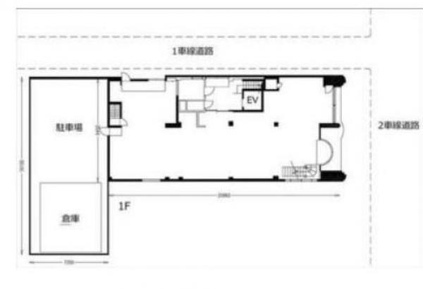
| 所在地 | 愛知県名古屋市西区又穂町1-27 |
| 交 通1 | 鶴舞線庄内通駅 徒歩12分 |
| 交 通2 | - |
| 賃料 | |
|---|---|
| 賃 料 | 306,636円(税込) |
| 共益費・管理費 | 31,130円(税込) |
| 保証金 | 6ヶ月 |
| 保証金償却 | 55% |
| 礼 金 | 1.10ヶ月 |
| その他 | |
|---|---|
| 備考 | 火災保険・保証会社加入必要 |
| 建物 | |
|---|---|
| 建物構造 | 鉄骨造 |
| 建物階建て |
地上3階 |
| 施工年月 | 1987(昭和62)年 10月 |
| 募集物件の階数 | 地上 2階 |
| 契約面積 | 199.98m2(60.49坪) |
| 用途地域 | 準工業 |
| 設備 | |
|---|---|
| 水道 | 公営 |
| 下水道 | 公共下水 |
| エレベータ | 有 |
| エアコン | 有 |
| トイレ | 有/専用 |
| 駐車場 | |
|---|---|
| 状 況 | 空有 |
| 駐車料金 | 13,200円(税込) |
| 取引情報 | |
|---|---|
| 取引態様 | 媒介 |
| 客付 | 可 |
この物件をチェックした人はこんな物件も見ています
- 店舗利用可能(登記・看板もOK) 事務所・店舗はテナント名古屋へ

愛知県名古屋市中村区東宿町2-125
96m2(29.04坪)
209,000円(税込)
- 名古屋駅太閤通口1分の飲食ビルです。

愛知県名古屋市中村区椿町-15-27
271.23m2(82.05坪)
2,256,100円(税込)
- 駐車場2台付店舗・事務所です。保証会社・火災保険契約必須です。

愛知県名古屋市西区南川町-230
56.43m2(17.07坪)
129,800円(税込)
- スナック居抜店舗です。保証会社・火災保険契約必須です。

愛知県名古屋市中川区高畑3-138
33.30m2(10.07坪)
159,500円(税込)
- 藤ヶ丘駅徒歩2分の店舗・事務所。保証会社・火災保険必須。事務所・店舗探しはテナント名古屋へ。

愛知県名古屋市名東区明が丘-124‐2
43.53m2(13.17坪)
188,188円(税込)
今日チェックした物件
お急ぎの方はお電話からお気軽にどうぞ!
052-825-3395 営業時間 / 9:30〜18:00 定休日 / 日曜日


052-825-3395
















052-825-3395