情報更新日:2026年04月14日/広告有効期限:なし
表示閲覧回数(過去30日間):22
お急ぎの方はお電話からお気軽にどうぞ!
052-825-3395 営業時間 / 9:30〜18:00 定休日 / 日曜日
>物件詳細情報
| 基本情報 | |
|---|---|
| 物件番号 | 10007811014 |
| 店舗形態 | ロードサイド, 店舗, 居抜店舗, 事務所 |
| オススメ業種 | 美容関係, 物販関係, 塾・学校・教育関係, 事務所 |
| 物件名 | ケンシンビル |
| 物件の状態 | 空き |
| 引越し時期 | 即 |
| 契約形態と期間 |
普通契約期間:2年間 |
| 所在地・交通 | |
|---|---|
| 所在地 | 愛知県名古屋市守山区大森1-2511 |
| 交 通1 | 名鉄瀬戸線大森・金城学院前駅 徒歩9分 |
| 交 通2 | - |
| 賃料 | |
|---|---|
| 賃 料 | 165,000円(税込) |
| 保証金 | 3ヶ月 |
| 保証金償却 | 330,000円(税込) |
| 礼 金 | 1ヶ月 |
| その他 | |
|---|---|
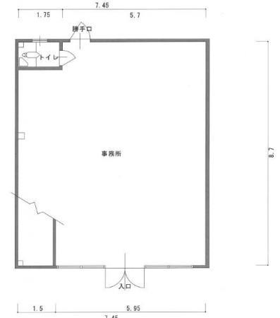
| 備考 | ロードサイド沿い1階店舗・事務所です。駐車場は2台ございます。保証会社・火災保険契約必須です。事務所・店舗はテナント名古屋へ。 |
| 建物 | |
|---|---|
| 建物構造 | 鉄骨造 |
| 建物階建て |
地上3階 |
| 施工年月 | 1996(平成8)年 07月 |
| 募集物件の階数 | 地上 1階 西号室 |
| 契約面積 | 64.92m2(19.64坪) |
| 用途地域 | 近商地域 |
| 設備 | |
|---|---|
| 水道 | 公営 |
| 下水道 | 公共下水 |
| エレベータ | 無 |
| エアコン | 無 |
| トイレ | 有/専用 |
| キッチン | 有/専用 |
| セキュリティ | 無 |
| シャッター | 有/手動 |
| 照明設備 | 有 |
| 駐車場 | |
|---|---|
| 状 況 | 空有 |
| 駐車料金 | 7,700円(税込) |
| 空き台数 | 2台 |
| 取引情報 | |
|---|---|
| 取引態様 | 媒介 |
| 客付 | 可 |
この物件をチェックした人はこんな物件も見ています
- 店舗利用可能(登記・看板もOK) 事務所・店舗はテナント名古屋へ

愛知県名古屋市中村区東宿町2-125
96m2(29.04坪)
209,000円(税込)
- 名古屋駅太閤通口1分の飲食ビルです。

愛知県名古屋市中村区椿町-15-27
271.23m2(82.05坪)
2,256,100円(税込)
- ロードサイド沿い1階店舗・事務所です。駐車場は2台ございます。保証会社・火災保険契約必須です。

愛知県名古屋市守山区大森1-2511
64.92m2(19.64坪)
165,000円(税込)
- 1棟貸事務所、駐車場賃料に込み、学習塾居抜き、事務所・店舗はテナント名古屋へ

愛知県名古屋市港区当知1-604
240.40m2(72.72坪)
495,000円(税込)
- スナック居抜店舗です。保証会社・火災保険契約必須です。

愛知県名古屋市中川区高畑3-138
33.30m2(10.07坪)
159,500円(税込)
今日チェックした物件
お急ぎの方はお電話からお気軽にどうぞ!
052-825-3395 営業時間 / 9:30〜18:00 定休日 / 日曜日


052-825-3395



















052-825-3395